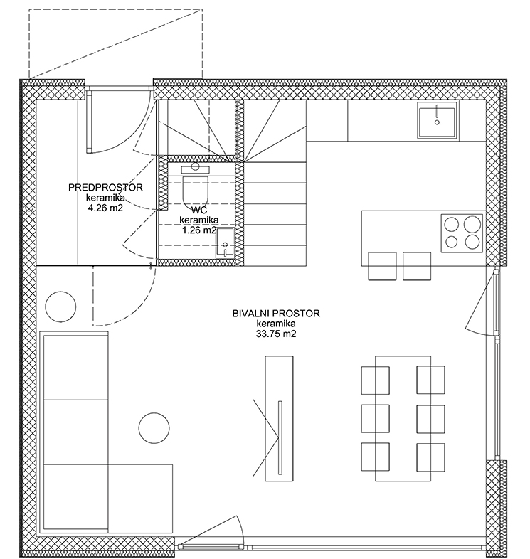
Pritličje
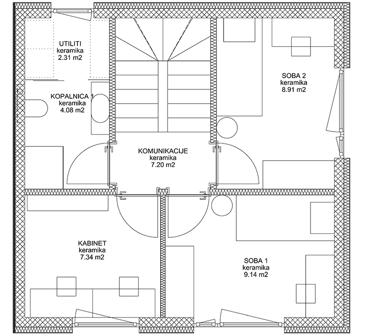
Nadstropje
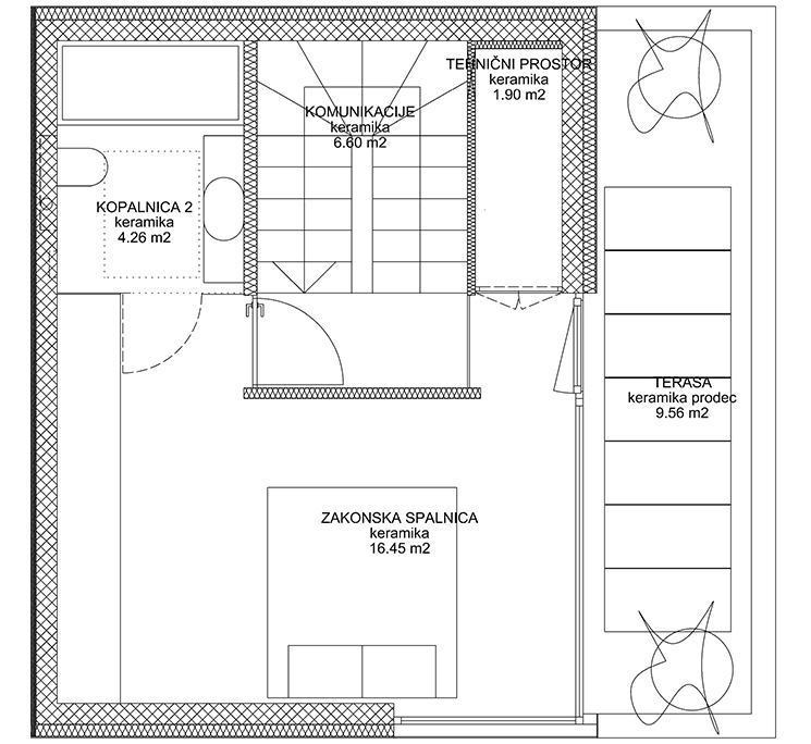
Podstreha
Nadstropje
Podstreha
Stanovanje 7
252,93 m2
uporabne površine
135,00 m2PRITLIČJE 57,25 m2
predprostor
4,26 m2
bivalni prostor
33,75 m2
wc
1,26 m2
lopa
8,80 m2
paviljon
9,18 m2
NADSTROPJE 38,98 m2
komunikacije
7,20 m2
soba 1
9,14 m2
soba 2
8,91 m2
kabinet
7,34 m2
kopalnica
4,08 m2
utiliti
2,31 m2
PODSTREŠNA ETAŽA 38,77m2
komunikacije
6,60 m2
zakonska spalnica
16,45 m2
kopalnica 2
4,26 m2
tehnični prostor
1,90 m2
terasa
9,56 m2
zelene površine
73,36 m2atrij
73,36 m2
zunanje tehnične površine
44,57 m22x nadkrito parkirno mesto
23,50 m2
dvorišče
15,07 m2
ekološki otok
6,00 m2
Cena
Prodano
